Проект дома в Хасавюрте

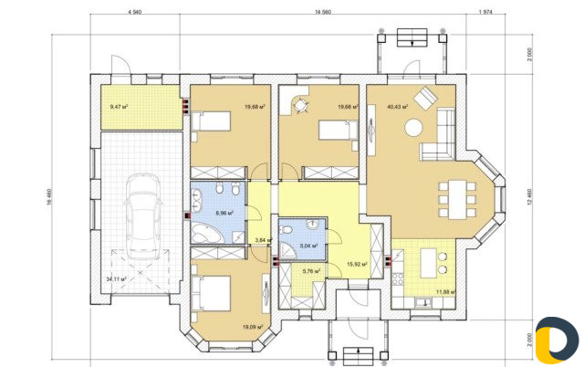
Базовый пакет стоит 2500 рублей. Туда входит: 1. Ведомость заполнения оконных и дверных проемов и квадратная площадь всех комнат, стен 2. Поэтажные планы (План фундамента, 1-го, этажа) 3. Подсчет площади крыши 4. Разрез(ы) 5. Фасады 6. Общий вид 7. Возможностью увидеть 3D проекта, как на компьютере так и на телефоне, видно будет все. Подобную работу меньше чем за 10 тыс вам никто не сделает. Не упустите возможность. Наличие проекта позволит Вам максимально исключить ошибки при строительстве. Уже на этапе проекта возможно очень точно представить себе, как будет выглядеть дом, какими характеристиками он будет обладать, можно оценить его удобство, и возможность расставить мебель, будут видны размеры будущей мебели. А также у нас есть строители, которые реализуют ваш проект, с опытом работы более 10 лет.
- Регион: Дагестан
- Город: Хасавюрт
- Цена: 2500р
На карте


