Проект дома в Хасавюрте
Просмотров: 72
Пятница, 06 марта 2020 г.

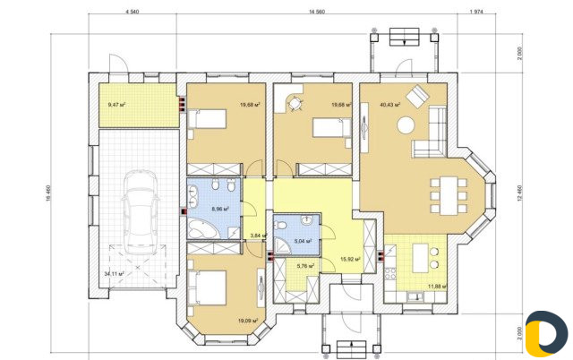
Базовый пакет стоит 3000 рублей. Туда входит: 1. Ведомость заполнения оконных и дверных проемов и квадратная площадь всех комнат, стен 2. Поэтажные планы (План фундамента, 1-го, этажа) 3. Подсчет площади крыши 4. Разрез(ы) 5. Фасады 6. Общий вид 7. Возможностью увидеть 3D проекта, как на компьютере так и на телефоне. Также занимаемся Проектированием деревянных домов из оцилиндрованного бревна и бруса И проектирование каркасных домов
- Регион: Дагестан
- Город: Хасавюрт
- Адрес: Республика Дагестан, Хасавюрт
- Цена: 3000р
На карте


