Чертежи, планы, схемы, км, кмд, кж, ар в autoсad в Новороссийске

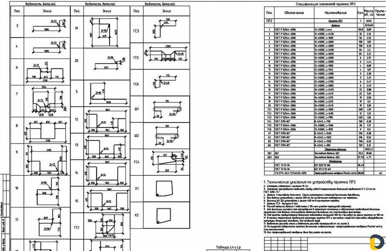
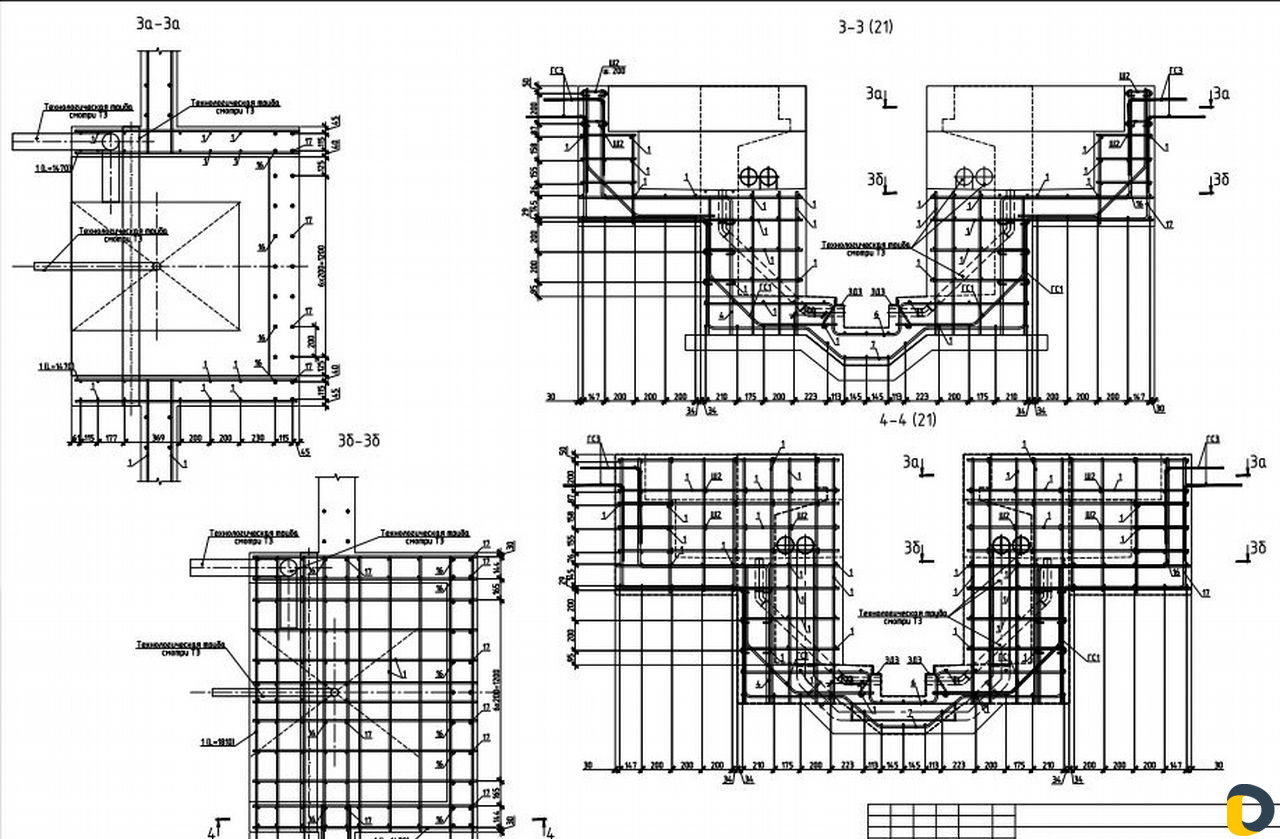
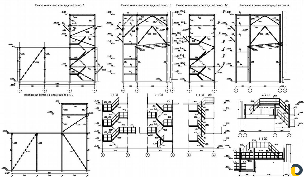
1) Выполнение практически любых чертежей по вашему заданию или эскизу в АutоСаd (Автокад). 2) Разработка, в том числе и с нуля, чертежей марок КМ, КМД, АР, КР, КЖ, ПЗ. 3) Расчет строительных конструкций, расчет строительных конструкций с оформлением расчета. 4) Корректировка существующих чертежей в DWG, частичная корректировка документации в РDF. 5) Оцифровка чертежей, в том числе и с корректировкой. 6) Документация для получения разрешения на строительство. 7) Документация для прохождения экспертизы. 8) Раскрой металлоконструкций (листовой металл, прокатный профиль). 9) Обучаю работе в автокаде, условия обговариваются индивидуально. Опыт работы в автокаде и в строительной сфере более 9 лет. Цена договорная. При обсуждении подберу пример максимально похожий с вашим заданием. Основной вид разрабатываемой документации: Рабочая и проектная документация на различные здания: административно-бытовые, магазины, жилые, особенно промышленные здания: склады, цеха, СТО, автомойки, лестницы, площадки, ограждение, стремянки, КМД на различные не стандартные конструкции, КМД по эскизу, кр, по аналогичному проекту. Разработка КМД без км с расчетом или если есть (у меня или у вас), то по аналогичному объекту. tаgs# Автокад, кад, Саd, Чертежи, планы, план, схема, схемы, проект,, разрешительная документация, , металлоконструкции, железобетонные, фундаменты, рабочая документация, проектная документация, расчет.
- Регион: Краснодарский край
- Город: Новороссийск
- Адрес: Кутузовское кольцо
На карте


