Чертеж плана помещения в Махачкале
Просмотров: 575
Воскресенье, 29 марта 2020 г.

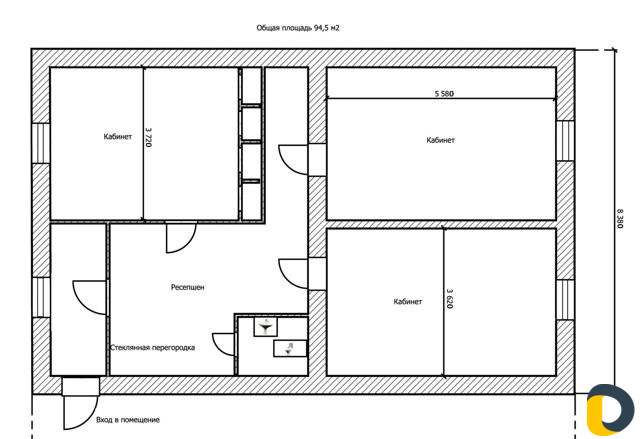
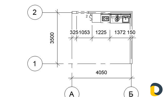
План помещения. План квартиры с расстановкой мебели. План производственного помещения. Обмерный план помещений в 3D
- Регион: Дагестан
- Город: Махачкала
- Район: Ленинский
- Адрес: пр-т Петра I, 101
- Цена: 1500р
На карте


